Eladó Sorház, Kecskemét

#704600514

Eladó Sorház

149.9 millió Ft

Kecskemét Belváros
Alapterület:
105 m2
Szobák száma:
4
Állapot:
Új építésű
Építési mód:
Tégla

Kérjen személyes bemutatást!
Adja meg adatait, és hogy mikor érne rá!

Az Adatkezelési tájékoztatót elolvastam és elfogadom.

Megfelelő időpontok

Hétköznap délelőtt
Hétköznap délután
Hétköznap este
Hétvégén délelőtt
Hétvégén délután
Hétvégén este
Kérés elküldése
100 m2

Kecskemét belvárosához közel eladó 4 db sorházi lakás, és egy első emeleti lakás!

 

Átadás 2026 eleje !!!

 

Garázs, és a beálló benne vannak az árban !!!

 

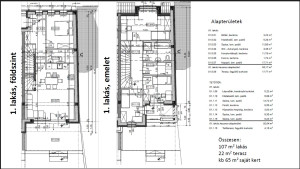
1. sorházi lakás107 nm, 22 nm-es terasz, 65 nm kert, garázs, udvari autó beálló

2. sorházi lakás 108 nm, 25 nm terasz, 55 nm kert, garázs, beálló

3. sorházi lakás 108 nm, 25 nm terasz, 55 nm kert, garázs, beálló

4. sorházi lakás 103, 22 nm terasz, 55 nm kert, garázs, beálló

5. első emeleti lakás 101 nm, 37 nm-es terasz, garázs, beálló

 

Udvari parkolás carport megoldással !!! Minden helyhez elektromos töltési lehetőség !!!

 

Műszaki megoldások
• Minden lakás saját víz, áram és gázmérővel
• Az áram normál tarifával (3*16A)
• Minden lakáshoz 4,5 kWp-s önálló napelem saját inverterrel
• Padlófűtés, és hőszivattyús fali hűtő-fütő klímák minden helyiségben
• Kettős üzemelésű melegvíztároló (gáz+villany)
• Központi automata öntözés
• Elektromos alumínium redőnyök, szúnyoghálók
• Napellenző előkészítések
• A lakások nappalijában toló-bukó ajtók (Veka)
• TV, internet, wifi, riasztó, okos otthon

Értékesítés tervezett készültségi foka:
• Kulcsrakész átadás
• A mozgatható bútorok kivételével berendezve ( komplett fürdőszoba, beépített szekrény az előszobában, TV komód a földszinten, gépesített konyha - Bosch, Elektrolux, beépíatett hűtő, mikró, kerámialapos főzőlap, sütő, mosogatógép )
 

További információért keressen bizalommal!

 

 

Kérdése van?
Adja meg adatait és felhívjuk!

Az Adatkezelési tájékoztatót elolvastam és elfogadom.
Üzenet küldése